你好,欢迎来到卓为空调机电官网!专业无尘车间,百级无尘车间,千级无尘车间,万级无尘车间,十万级无尘车间设计施工!全国服务热线:400-0000-826

_开云手机站登录入口官网

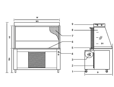
洁净工作台

水平流洁净工作台

作者: 开云手机站登录入口官网发表时间:2017-08-17 18:51:51浏览量:4190

水平流洁净工作台


水平流工作台用途:
水平流工作台广泛应用于需要局部净化的实验室、生物制药、光电产业、微电子、硬盘制造等领域。水平流洁净工作台具有高洁净度、可连接成装配生产线、低噪声、可移动等优点。

水平流工作台特点:
1、风机采用直驱式高效离心风机,具有长寿命、低噪声、免维护、震动小、可无级调速等特性。工作寿命长达3万小时或以上。风机调速性能稳定,在高效过滤器终阻力的状态下仍可保证风量不变。
2、采用美国AAF超薄型无隔板高效过滤器,将静压箱尺寸缩到最小,再配以不锈钢台面和玻璃侧挡板使整个工作室显得宽敞明亮。
3、装有美国Dwyer压差表,明确指示高效过滤器两侧的压差,并及时提醒更换高效过滤器。
4、采用无级可调风量送风系统调节风速,使工作区风速处于理想状态。
5、方便拆卸式大风量预过滤初效过滤器,更好地保护高效过滤器,且保证风速。
6、水平流形,开放台式,操作方便。
7、产品出厂前均按美国联邦标准209E逐台严格检验,可靠性极高。
8、特别适合于组装成超净生产线,可根据工艺需要布置为单台使用,也可多台串联形成100级流水装配线。
注:卓为空调机电 可以根据顾客要求(非标产品),设计定制。

主要技术参数:

型号

ZW-SST121

ZW-SST221

ZW-SST321

外形尺寸

W1000*L770*H1470

W1500*L770*H1470

W1950*L770*H1470

工作区尺寸

W920*L600*H600

W1420*L600*H600

W1870*L600*H600

洁净等级

@0.3um

平均风速

0.4-0.7m/s(风速可调),建议使用0.4m/s

过滤效率

99.99%@0.3m

   

≥300lx

振动半峰值

≤5um

   

0.45m/s≤45dB

0.45m/s≤45dB

0.45m/s≤45dB

    

160W

220W

320W

    

220V  50Hz

日光灯规格及数量

20W*①

40W*①

40W*①

    

箱体为冷轧钢板喷塑(或不锈钢),台面为吵光不锈钢



Copyright (C) 2019 All rights Reserved. 开云手机站登录入口 版权所有   粤ICP备12061575号   网站统计

网站地图